所属分类:造粒机系列
产品简介:产品特点:1、物料经机械压力强制压缩成型,无需任何添加剂,产品纯度得到保证。2、干粉直接造粒,无需后续干燥过程,更有利于...
CHENJU GANZAO
Product introduction产品特点:
1、物料经机械压力强制压缩成型,无需任何添加剂,产品纯度得到保证。
2、干粉直接造粒,无需后续干燥过程,更有利于现有生产流程的衔接和改造。
3、颗粒强度高,堆积比重的提高较其它造粒方式都更为显著。
4、适应原料范围广、颗粒强度可根据不同物料自由调整。
5、结构紧凑、维修方便、操作简单、工艺流程短、能耗低、效率高、故障率低。
6、可控制环境污染,减少粉体浪费和包装成本,提高产品运输能力。
7、加料和喂料装置采用变频控制,自动化程度高,可实现一人多机控制,劳动强度低。
8、主要传动部件均采用优质合金材料、不锈钢材料、钛材、铬和其他表面合金制作,大大提高了设备耐磨损、耐腐蚀、耐高温及耐压能力,使该机组具有较长的使用寿命。
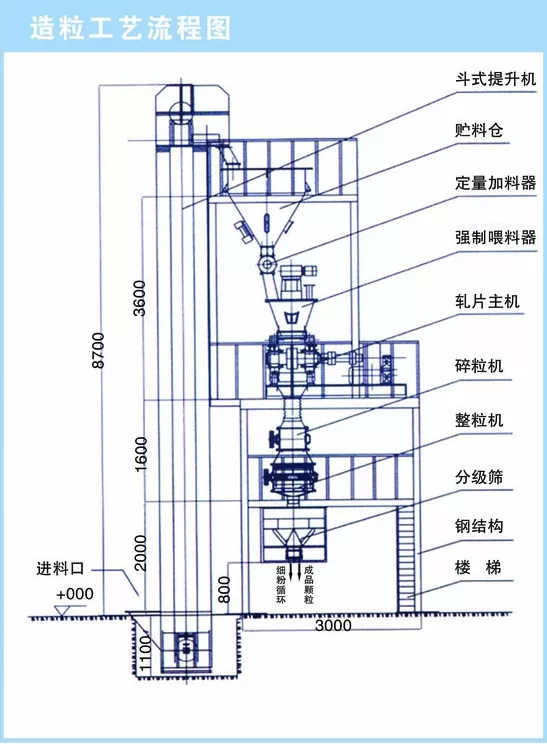
工艺流程:
干粉通过螺旋输送机、皮带机或人工搬运进入斗式提升机的原料仓,由斗式提升机将原料粉末送入振动式过渡料仓,通过定量加料装置将物料均匀地送入变频式立式螺旋喂料机,对物料进行脱气预压缩,经预压缩的物料被压入两个相对转动的压辊中间进行压产,被压实的条片状物料自动脱槽后进入破碎机,被破碎成大小不均的颗粒,然后进入整粒机进行修整,修整后的颗粒通过带网孔的筛板被挤压出来进入筛分机,成品颗粒通过筛分后直接包半或进入斗式提升机被送入成品仓,筛分下来的粉状物料

CHENJU GANZAO
Enterprise strengthCHENJU GANZAO
Relevant news
全国统一服务热线
1396141668513961416685
扫一扫联系我们